Quinta Monroy half-houses as delivered — concrete structure with timber staircases and expansion voids. Photo: Cristobal Palma

HALF A GOOD
HOUSE

Elemental / Quinta Monroy — A Systems Case Study

Ian Arnoldy + Yuchen Zhang  |  Systems Innovation: Beyond Human-Centered Design

expand_more
The Problem

In the early 2000s, Chile was building 100,000 social housing units per year. It was the model for the developing world.

The government subsidy of $7,500 per family bought a 36 m² box on the cheapest land available — always on the urban periphery, far from jobs, schools, and hospitals. Commutes stretched to two or three hours. Properties depreciated instead of gaining value. Mortgage delinquency hit 70%. Social networks shattered on relocation.

Nearly 1.7 million homes were delivered in three decades. The academics who studied the result coined a phrase: “Los con techo” — “Those with a roof.” The housing problem was no longer families without a roof. It was the families with one. The houses themselves had become poverty traps.

The pattern repeated across Latin America — Brazil, Mexico, Argentina. Wherever governments built cheap housing far from economic opportunity, they reproduced poverty in a new form.

01 / Context

Q1 — What was the context this project was created in?

Iquique, Chile — 93 families on half a hectare of central land they refused to leave.

Quinta Monroy was a 5,000 m² lot in the center of Iquique — a port city on Chile’s northern desert coast, driven by the ZOFRI free trade zone, copper mining, and port operations. Roughly 100 families had been living there informally since the 1960s. 60% of rooms lacked natural light. A fire in 1980 left 20 families homeless. No legal tenure, no formal infrastructure — but direct access to jobs, schools, hospitals, and thirty years of social networks.

When the landowner died in 2000, the land tripled in value and the families faced eviction. The government’s default move: relocate them to the periphery — feeding the same feedback loop that had trapped 1.7 million families before them. But these residents organized. They refused. And the government, bound by its national commitment to eliminate informal settlements, commissioned an unusual architecture firm called Elemental to find a different answer.

The Displacement Feedback Loop
Cheap peripheral land Isolation from jobs Property depreciates No equity Trapped in poverty Can only afford cheap land Cycle repeats

Elemental broke this loop at the root: the land decision. They kept families on central land — even though it cost three times the standard allocation.

Interior void as delivered — timber staircase and light shaft, awaiting expansion. Photo: Cristobal Palma
02 / Design

The Void

The structural skeleton delivered by Elemental — everything a family cannot build themselves. The other half waits.

Before and after: empty delivered interior (top) vs. fully furnished home (bottom). Photo: Tadeuz Jalocha / ELEMENTAL

Q2 — How did context affect its design?

Half a Good
House

With $7,500 and land costing three times the standard allocation, Elemental couldn’t build a complete house. Architect Alejandro Aravena reframed the question: “What if 36 m² is not a small house, but half of a good one?”

Elemental built the “difficult half” — reinforced concrete frame, foundation, roof, kitchen, bathroom, staircase, all infrastructure. They left the other half as a structural void. They called it “middle-class DNA” — housing designed to grow into a 72 m² middle-class home, not shrink into a depreciating box.

  • 34 Ground-Floor Units 36 m² → 70 m²
  • 59 Upper-Floor Duplexes 36 m² → 72 m²
  • 4 Shared Courtyards Preserving social bonds
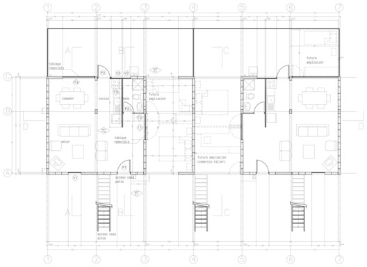
Architectural Evidence
Floor plan showing future expansion zones Floor Plan — expansion zones labeled “futura ampliación”
Architectural elevation showing both typologies Elevation — Type 1 (ground) + Type 2 (duplex) with human scale
Delivered interior — bare concrete, orange panels, sink Delivered Interior — the “difficult half” as handed to families
Before/after — bare concrete vs. colorful expanded home Before / After — same unit, delivered (L) vs. resident-expanded (R)

Images: ELEMENTAL open-source drawings (elementalchile.cl) & Cristobal Palma / Tadeuz Jalocha. Fair use for academic purposes.

The Solution — By the Numbers
93 Families Housed
$7,500 Per-Unit Subsidy
36→72 m² Expandable
230% Value Increase
Quinta Monroy courtyard as delivered — raw concrete half-houses, timber staircases, open voids under blue sky. Photo: Cristobal Palma
03 / Systems

Beyond
HCD

Four systems redesigned. Not one interface improved.

Q3 — Why does this move beyond user-centered design?

A user-centered designer would have made a better 36 m² house. Aravena changed the system.

Government Policy

Changed what the subsidy was allowed to buy — half a unit instead of a whole one. Convinced MINVU through the VSDsD program under President Lagos.

Land Economics

Spent 70% of the budget on central location instead of construction. Location is the intervention — not square footage.

Construction Logic

Designed for the 72 m² end state, not the 36 m² delivery. Incomplete but expandable beats complete but fixed.

Role of the Resident

Co-builder and investor, not passive recipient. Sweat equity translates directly into financial equity. 92 of 93 families expanded within 12 years.

“What we’re trying to do by asking people to participate is envision what is the question, not what is the answer. There’s nothing worse than answering the wrong question well.”

— Alejandro Aravena, TED Talk (2014)
Participatory Design
01

The Hunger Strike

Residents threatened a hunger strike when apartments were proposed. They rejected any design that couldn’t expand. This constraint produced the half-house innovation.

02

The Right Question

“If you can only have half a house now, which half do you need us to build?” Residents chose: stay on this land, ability to expand, ground-level access, middle-class standard.

03

Design Justice

Connects to Costanza-Chock’s framework: “Nothing about us without us.” The hunger strike was not an obstacle — it was the most important data point in the project.

Before and after — bare concrete half-house (left) vs. colorful resident-expanded home with children (right). Photo: Cristobal Palma
Iquique, Chile — 2004

Quinta
Monroy

What happens when you give 93 families half a house on the most expensive land in the city — instead of a whole house on the cheapest?

93 families. Half a hectare. $7,500 per unit. Elemental spent 70% of the budget keeping families on central land they’d occupied for 30 years — then built only the half of the house that families couldn’t build themselves.

Within one year, property values tripled. Within twelve years, 92 of 93 households had expanded their homes. Families who would have been displaced to the periphery instead built equity, started businesses, and rented out rooms. The house became an investment vehicle, not a depreciating box.

04 / Impact

Q4 — Does moving beyond HCD make it better?

Mostly yes. But with real problems.

92 of 93 families expanded their homes. Property values increased from $7,500 to over $20,000 within a year. Central location was preserved. Families who would have been pushed to the periphery remained connected to economic opportunity. Housing extensions became income sources — rental units, businesses.

The positive feedback loop reversed the system: central location → economic access → home expansion → increased value → household wealth → further investment. The house became what Aravena calls “a tool to overcome poverty” rather than merely “a shelter against the environment.”

But the problems are real. Construction quality is uneven — many additions use low-quality materials that replicate the informal conditions the project was designed to replace. 31% of units encroached on shared courtyards. Participation ended at handover — no ongoing technical support, no collective governance. And at the global level, the model hasn’t scaled. Aravena himself calls it “still a failure.”

Quinta Monroy expanded facade — vibrant patchwork of resident-built additions, person ascending stairs. Photo: Cristobal Palma
Constitución, Chile — 2013

Villa
Verde

On February 27, 2010, an 8.8-magnitude earthquake struck Chile — one of the six most powerful ever recorded.

The coastal city of Constitución was devastated. Tsunami waves reached 15 meters. 61% of the urban area flooded. 80% of buildings were ruined. 1,260 families lost their homes.

Elemental was hired — funded by forestry company ARAUCO with engineering support from Arup — to create not just housing, but a complete city master plan. 484 incremental houses at Villa Verde. A 16-hectare forest designed to dissipate 40–70% of future tsunami energy. Public space tripled from 2.2 to 6.6 m² per inhabitant. 45 forums, 100+ community meetings, 2 binding citizen consultations.

Quinta Monroy was 93 families on half a hectare. Constitución was a city-level master plan for 46,000 people. The model scaled.

Recognition

AWARDS & MILESTONES

2004

Quinta Monroy completed — 93 families housed in central Iquique

2008

Venice Biennale Silver Lion — Promising Young Architects

2010

8.8-magnitude earthquake devastates Constitución — Elemental hired for city master plan

2013

Villa Verde completed — 484 incremental housing units in Constitución

2016

Pritzker Architecture Prize — first Chilean laureate. Open-sources 4 housing designs (40,000 downloads)

2025

Aravena: “It’s still a failure. The mainstream has not been affected.”

05 / Criticism

Q4 — Honest analysis

The system bent. It didn’t break.

Construction Skill Gap

Not all families can build. Many additions use “low-durable and poor quality materials similar to the slum-like conditions seen in the previous informal settlement” (O’Brien & Carrasco, 2021). 31% of units encroached on public courtyards.

“Why Should the Poor Get Half a House?”

Boano & Vergara Perucich (2016) argue the model normalizes inadequate state provision — shifting the construction burden onto the poorest families. The ideological critique: the half-house as neoliberal strategy disguised as empowerment.

Participation Ended at Handover

Carrasco & O’Brien (2021) found that “the participative processes claimed by Elemental ended when residents received their homes.” Individual agency without collective governance produces a tragedy of the commons.

Scalability

Despite the Pritzker Prize, 40,000 plan downloads, and global media, the dominant housing model worldwide remains unchanged. Aravena’s own 2025 assessment: “It’s still a failure. The mainstream has not been affected.”

06 / People

Q5 — What groups did this affect?

93 families — housed on their own land, given a platform for wealth building

Government officials — who approved an unconventional half-house model

2,500+ families — in subsequent Elemental projects across Chile and Mexico

40,000 downloaders — of the open-source plans worldwide

The architecture profession — the Pritzker shifted the conversation about what design is for

07 / Change

Q6 — Did it create meaningful change?

Project level: Yes. Families kept their land, built equity, stayed connected to economic opportunity. 92/93 expanded.

City level: Yes. Constitución proves the model scales — from 93 families to 46,000 people.

Global level: Not yet. The mainstream has not been affected. The open-source plans generated visibility, not adoption.

The meaningful change is real but bounded. The system bent. It didn’t break. And that tension — between proof-of-concept and systemic transformation — is what makes this a systems case study rather than just a design case study.

Sources

BIBLIOGRAPHY

Peer-Reviewed Academic Papers

  1. Boano, C., & Vergara Perucich, F. (2016). Half-happy architecture. Viceversa, No. 4. Academia.edu
  2. Carrasco, S., & O’Brien, D. (2021). Beyond the freedom to build: Long-term outcomes of Elemental’s incremental housing in Quinta Monroy. urbe. Revista Brasileira de Gestão Urbana, 13. DOI
  3. Carrasco, S., & O’Brien, D. (2022). Re-thinking Elemental’s incremental housing: Residential satisfaction and resident-driven adaptations in Villa Verde, Chile. urbe. Scielo
  4. O’Brien, D., & Carrasco, S. (2021). Contested incrementalism: Elemental’s Quinta Monroy settlement fifteen years on. Frontiers of Architectural Research, 10(2), 263-273. ScienceDirect
  5. Rodriguez, A., & Sugranyes, A. (2005). Los con techo: Un desafío para la política de vivienda social. Santiago: Ediciones SUR. Cited in Tandfonline
  6. Van Noorloos, F., et al. (2020). Incremental housing as a node for intersecting flows of city-making. Environment and Urbanization. SAGE Journals

Policy & Research Institute Publications

  1. Housing Finance Policy in Chile. Lincoln Institute of Land Policy. lincolninst.edu
  2. The Progressive Housing Program in Chile, 1990-2002. Inter-American Development Bank. IDB PDF
  3. Housing Policy in Chile. OECD, 2016. OECD PDF
  4. Affordable Land and Housing in Latin America and the Caribbean. UN-Habitat. UN-Habitat PDF
  5. Addressing housing deficits: A review of Chilean housing policy. Housing Studies. Tandfonline

Official & Institutional Sources

  1. ELEMENTAL — About. elementalchile.cl
  2. ELEMENTAL — Quinta Monroy Housing Plans (open-source). elementalchile.cl/downloads
  3. Pritzker Architecture Prize — Jury Citation for Alejandro Aravena. pritzkerprize.com
  4. MoMA — Small Scale, Big Change: Quinta Monroy Housing. moma.org
  5. UN News — Pritzker Prize-winning architect on urban planning. news.un.org
  6. Holcim Foundation — PRES Constitución Master Plan. holcimfoundation.org
  7. Harvard ReVista — ELEMENTAL. revista.drclas.harvard.edu

Architecture Media

  1. ArchDaily — Quinta Monroy / ELEMENTAL. archdaily.com
  2. ArchDaily — Construction Details of ELEMENTAL’s Incremental Housing. archdaily.com
  3. ArchDaily — Alejandro Aravena Wins 2016 Pritzker Prize. archdaily.com
  4. ArchDaily — ELEMENTAL Releases Plans for Open-Source Use. archdaily.com
  5. Dezeen — Quinta Monroy: most significant building of 2004 (2025). dezeen.com
  6. Dezeen — Aravena makes housing designs available for free (2016). dezeen.com
  7. Arquitectura Viva — Viviendas Quinta Monroy, Iquique. arquitecturaviva.com
  8. Arquitectura Viva — Viviendas Villa Verde, Constitución. arquitecturaviva.com
  9. Landezine — Mitigation Park, Constitución. landezine.com
  10. Spatial Agency — Elemental. spatialagency.net
  11. Design Indaba — The Good Half House (interview). designindaba.com

TED Talks & Speeches

  1. Aravena, A. (2014). My architectural philosophy? Bring the community into the process. TED Talk. ted.com
  2. Aravena, A. (2016). Pritzker Prize Acceptance Speech, United Nations. ArchDaily transcript

News & Commentary

  1. World Bank — The “Starchitect” of the Poor. blogs.worldbank.org
  2. New Republic — Can Half a Good House Become a Home? (2016). newrepublic.com
  3. CNN — Pritzker Prize Winner 2016. cnn.com
  4. 99% Invisible — Half a House (transcript). 99percentinvisible.org
  5. Revista Latina Focus — How Did a Half-Built House Change the Lives of 100 Families? revistalatinafocus.com

Government & International Organizations

  1. USGS — Report on 2010 Chilean Earthquake and Tsunami. pubs.usgs.gov
  2. Britannica — Chile Earthquake of 2010. britannica.com
  3. ARAUCO — PRES Constitución. arauco.com

Course Textbooks

  1. Cababa, S. Closing the Loop: Systems Thinking for Designers. Rosenfeld Media.
  2. Costanza-Chock, S. (2020). Design Justice: Community-Led Practices to Build the Worlds We Need. MIT Press. MIT Press

Image Credits

All architectural photographs: Cristobal Palma / Estudio Palma and Tadeuz Jalocha, via ArchDaily. Architectural drawings: ELEMENTAL open-source release, elementalchile.cl. Used under fair use for academic purposes.